Copyright © 1998-2015 Natalie Howard. All rights reserved.

|
How to Order |
Plan
L-1950
First Floor: 1320 sq ft
Second Floor: 630 sq ft
Length: 75'
Alternate adds square footage |
| Bedrooms |
4 |
|
Fireplace |
1 |
| Bathrooms |
2.5 |
|
Porch |
1 |
| Floors |
2 |
|
|
|
|
|
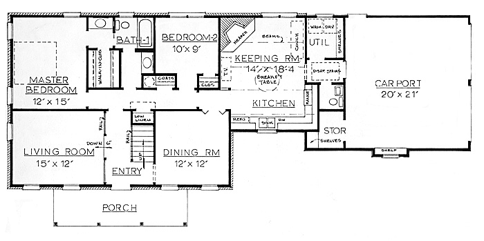
This Country Log Plan,
L-1950, offers a formal dining room along with the large country, eat-in
kitchen. The Keeping Room with its corner fireplace provides for couch
and TV space in this extra sitting area. The homemaker can be a part of
the family while busy in the kitchen.
The second bedroom downstairs can become a handy office or become a
guest bedroom. A convenient half-bath is located near the garage for
gardeners or small children. Also, opposite the half bath is the deep
utility room with space for storage shelves. Storage room is provided
for the double Garage.
Upstairs, two generous sized bedrooms, each with its dormer window, have
vaulted ceilings under the half story roof. A tiny room at the head of
the stairs can be a small office or Nursery. For an open Office, the
Nursery walls can become a low wall or rails. A large linen closet is
placed at the top of the stairway.
The plan includes alternates for a master bath with a tub and separate
shower and an alternate stairway to the area above the garage. Also, a
small, open walkway above the Kitchen, like the one shown in Plan
F-1990, can connect a Playroom over the Garage with Bedroom-3.
Pine, chinked, 6x12 dovetail logs form the exterior walls, but your
supplier can substitute another type log. |
|
View
Frame version |
|
View photo |
|