 Copyright ©
1998-2015 Natalie Howard. All rights reserved.
|
How to Order |
Plan F-1710
First Floor: 1708 sq ft
Length: 68' |
| Bedrooms |
3 |
|
Fireplace |
1 |
| Bathrooms |
2 |
|
Porch |
2 |
| Floors |
1 |
|
|
|
|
|
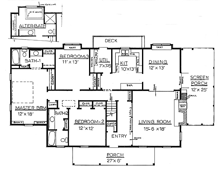
| The wide entry with the wood
columns and rail steps down into the living room. The fireplace has a wood box to open
from the screen porch and a grill with its own chimney flue. The dining room is separate
but can be opened to the kitchen for a more country feeling. The utility has extra space
for sink or freezer. The basement stairs lead to a full basement with a single garage
under the master bedroom. The conventional master bath can be built by the alternate
layout with a separate shower and tub. |
Alternates included:
• alternate master bath w/separate shower & Jacuzzi tub in
master bath |
View photo |
|