House plans by Natalie Howard

The inset front porch and triple windows add shadows and interest to this Country Home Plan F-1590

The large Country Kitchen with its harvest table for dining features an optional layout with a kitchen island and bar stools.

Country Plan F-1590

Copyright © 1998-2015 Natalie Howard. All rights reserved.

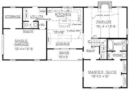
Country Plan F-1590 First Floor      

How to Order

Plan F-1590
First Floor: 1108 sq ft
Second Floor: 468 sq ft
Length: 56'
Bedrooms 3 Fireplace 1
Bathrooms 2.5 Porch 1
Floors 2    

Number of Sets

The inset front porch and triple windows in plan, F-1590, add shadows and interest to this Country Home. The Parlor with its centered fireplace is placed out of the traffic flow. The large Country Kitchen with its harvest table for dining also features an optional island with bar stools. The wall space beside the hutch location can hold a television. A handy half bath for young children is placed in the utility area near the rear exit. With a front gable the garage can be enlarged for two cars.
Alternates include:
An alternate layout for Master Bath with a separate shower and tub is included in plans. Two bedrooms with a hall bath are found upstairs.
Country Plan F-1590 Second Floor            

Country Plan F-1590 Alternate Bath
Alternate Master Bath
 

*material list only sold with plan of same number

  

 

List of House Plans

  

under 1000 sq ft

 
F-648 A F-780 A  

1000 - 1200 sq ft

 
F-1001 A
F-1008
A
F-1010
A
F-1055
F-1080
F-1104

F-1180
 

1200 - 1399 sq ft

 
F-1213
F-1250
A
F-1252
A
F-1280
C-1285
F-1300 A
F-1318
A
F-1338
A
F-1390
A
 

1400 - 1499 sq ft

 
F-1400 A
F-1430
A
F-1440
A
F-1441
A
C-1450
F-1460
F-1464
F-1472
 

1500 - 1699 sq ft

 
F-1500
F-1505
F-1516
F-1541
F-1545
F-1553
F-1554
F-1560
F-1568
F-1570
F-1585 A
F-1586
F-1590
F-1600
F-1622
F-1660
F-1674
F-1678
F-1680 A
F-1686 A
 

1700 - 1899 sq ft

 
F-1704
F-1708
F-1710
F-1728
A
F-1735
F-1745
F-1750
A
F-1755
A
F-1780 A
F-1796
F-1798
F-1800
F-1805
F-1810
F-1813
F-1860
F-1880
A
 

1900 - 2110 sq ft

 
F-1945
F-1950

F-1960 A
F-1975
F-1990 A
F-2040
F-2047
F-2058
F-2080
A
F-2110
A
 

2120 - 2500 sq ft

 
F-2128
F-2160 A
C-2200 A
F-2230
F-2300 A
F-2378
F-2382
 
above 2500 sq ft  
F-2540 A
F-2544
F-2600
F-2670 A
F-2874
F-3110
 

Log Plans

  

under 1000 sq ft

 
L-320 A
L-648
L-780
L-800 A
L-950
 

1000 - 1200 sq ft

 
L-1000
L-1001
L-1008
L-1080
L-1104
L-1180
 

1200 - 1399 sq ft

 
L-1252
L-1280

L-1300
L-1318
L-1390
 

1400 - 1499 sq ft

 
L-1430 L-1450  

1500 - 1699 sq ft

 
 L-1680    

1700 - 1899 sq ft

 
L-1735    

1900 - 2110 sq ft

 
L-1950  L-2230  

2120 - 2500 sq ft

 
L-2160 L-2300  
above 2500 sq ft  
L-2540    
A =alternate included
= includes actual photos
(click on photo button on plan page)

 


(click the square footage of the house plan you want to view) Look at small, or tiny homes.

Custom Home Plans Inc  - http://www.natalieplans.com
706-782-5637
4747 Murray Cove Road, Tiger, Georgia 30576
Email Natalie Howard

Copyright © 1998-2017 Natalie Howard. All rights reserved.
Last Revised: July 13, 2017