House plans by Natalie Howard

Country Plan F-1728 & Alternate

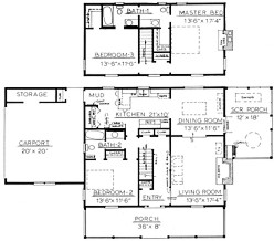
The 'one room thick' upstairs bedroom layout used in F-1728 is truly a country method of old south architecture. A shed roof covers the 8-foot porch on the front and covers the kitchen and dining room on the rear. The two bedrooms upstairs are joined by a bath. An alternate plan which extends out over the kitchen adds a master private bath with the separate shower and tub.
 

Standard Plan
  

Country Plan F-1728

Country Plan F-1728 First Floor

 

  Alternate version  
(accompanies plan)

Country Plans by Natalie - F-1728

Country Plan F-1728 Alternate First Floor

Country Plan F-1728 Alternate Floor 2
   

Click on one of the images above and when purchasing you will receive
basic and alternate plans with your order of F-1728.

  

 

List of House Plans

  

under 1000 sq ft

 
F-648 A F-780 A  

1000 - 1200 sq ft

 
F-1001 A
F-1008
A
F-1010
A
F-1055
F-1080
F-1104

F-1180
 

1200 - 1399 sq ft

 
F-1213
F-1250
A
F-1252
A
F-1280
C-1285
F-1300 A
F-1318
A
F-1338
A
F-1390
A
 

1400 - 1499 sq ft

 
F-1400 A
F-1430
A
F-1440
A
F-1441
A
C-1450
F-1460
F-1464
F-1472
 

1500 - 1699 sq ft

 
F-1500
F-1505
F-1516
F-1541
F-1545
F-1553
F-1554
F-1560
F-1568
F-1570
F-1585 A
F-1586
F-1590
F-1600
F-1622
F-1660
F-1674
F-1678
F-1680 A
F-1686 A
 

1700 - 1899 sq ft

 
F-1704
F-1708
F-1710
F-1728
A
F-1735
F-1745
F-1750
A
F-1755
A
F-1780 A
F-1796
F-1798
F-1800
F-1805
F-1810
F-1813
F-1860
F-1880
A
 

1900 - 2110 sq ft

 
F-1945
F-1950

F-1960 A
F-1975
F-1990 A
F-2040
F-2047
F-2058
F-2080
A
F-2110
A
 

2120 - 2500 sq ft

 
F-2128
F-2160 A
C-2200 A
F-2230
F-2300 A
F-2378
F-2382
 
above 2500 sq ft  
F-2540 A
F-2544
F-2600
F-2670 A
F-2874
F-3110
 

Log Plans

  

under 1000 sq ft

 
L-320 A
L-648
L-780
L-800 A
L-950
 

1000 - 1200 sq ft

 
L-1000
L-1001
L-1008
L-1080
L-1104
L-1180
 

1200 - 1399 sq ft

 
L-1252
L-1280

L-1300
L-1318
L-1390
 

1400 - 1499 sq ft

 
L-1430 L-1450  

1500 - 1699 sq ft

 
 L-1680    

1700 - 1899 sq ft

 
L-1735    

1900 - 2110 sq ft

 
L-1950  L-2230  

2120 - 2500 sq ft

 
L-2160 L-2300  
above 2500 sq ft  
L-2540    
A =alternate included
= includes actual photos
(click on photo button on plan page)

 


(click the square footage of the house plan you want to view) Look at small, or tiny homes.

Custom Home Plans Inc  - http://www.natalieplans.com
706-782-5637
4747 Murray Cove Road, Tiger, Georgia 30576
Email Natalie Howard

Copyright © 1998-2017 Natalie Howard. All rights reserved.
Last Revised: July 13, 2017