Country Plan F-2874
Opened both on the front to a country porch and
on the back to the Sunspace, this enormous room creates a most pleasant feeling.
Note that the Master Suite, with his and her baths and closets, is separated
from the additional two or three bedrooms by the Great Room. The two bedrooms
each have a private bath which is a plus for guests. One of these baths becomes
a hall bath when the additional 4th bedroom is added. A good traffic pattern
insures more efficiency in the kitchen. Extra counter area and built-in ovens
customize this functional kitchen. |
|
Copyright © 1998-2015 Natalie
Howard. All rights reserved.
Alternate Basement Stairs
(above)
|
Alternate Bedroom Plan
 |
|
|
How to Order |
Plan F-2874
First Floor: 2874 sq ft
Sunspace: 360 sq ft
Alternate +120 sq ft
(4 Bedrooms)
Length: 104' |
| Bedrooms |
3/4 |
|
Fireplace |
1 |
| Bathrooms |
4.5 |
|
Porch |
2 |
| Floors |
1 |
|
|
|
|
|
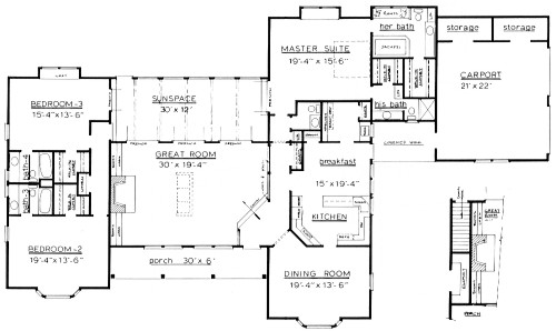
| Wide open spaces is the keynote for this plan, F-2874, with its Great Room and front bay windows. Opened both on the front to a country porch and on the back to the Sunspace, this enormous room creates a most pleasant feeling. Note that the Master Suite, with his and her baths and closets, is separated from the additional two or three bedrooms by the Great Room. The two bedrooms each have a private bath which is a plus for guests. One of these baths becomes a hall bath when the additional 4th bedroom is added. A good traffic pattern insures more efficiency in the kitchen. Extra counter area and built-in ovens customize this functional kitchen. The utility has its own sink and closet. A powder bath is located at the end of the hallway which is flanked with a rail and columns. Window seats are shown in the Master Suite and bedroom-3. The double garage is accessed from the kitchen/ breakfast rooms under a side porch roof. |
|
View exterior photos
View interior
photos |
|
click for larger
view
of floor plan
(will take time to load)
|
|