House plans by Natalie Howard

Country Plan F-2230

Country Home Plan F-2230

Copyright © 1998-2015 Natalie Howard. All rights reserved.

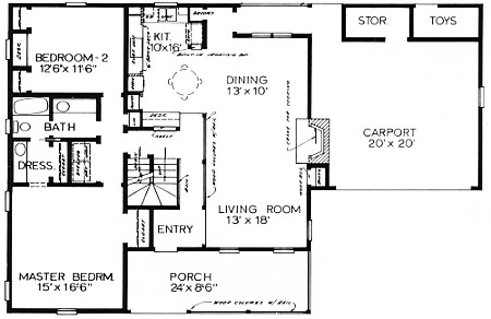
Country Plan F-2230 First Floor

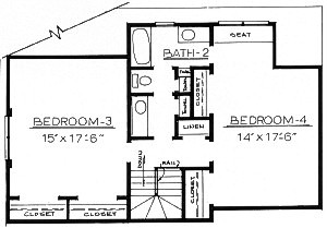
Country Plan F-2230 Second Floor                            

How to Order

Plan F-2230
First Floor: 1416 sq ft
Second Floor: 620 sq ft
Length: 64’
Bedrooms 4 Fireplace 1
Bathrooms 2 Porch 1
Floors 2     

Number of Sets

The generous Country Porch offers plenty of rocker space. The entry is one step higher than the open Living, Dining Room and Kitchen. A rail edges the hall and allows a very open feeling in the living areas. You have a long view the fireplace and its cooking crane as you enter into the house. Wall space for a buffet is provided near the fireplace. Double windows look over a covered walkway from the Garage or Carport. This Country Kitchen has its cooking surface unit placed in a brick arch beside the built-in ovens. a kitchen desk is opened to the stairway hall. There is also room for a small kitchen table. The Master Bedroom has a dressing area with vanity and closet, connecting to the hall bath. For a separate master bath, an alternate layout is shown in the construction plan. The washer and dryer is located in the utility closet off the hallway. A window seat is used between two closets in Bedroom-2. While the Garage opens to the front, it can be altered to have access from the side, eliminating the storage areas. Stairs lead to the basement area. Two large Bedrooms upstairs share a compartmented bath, each with its own vanity. Ample closets are provided for the bedrooms and bath. Dormer windows can be added to the bedrooms for more light.

click for larger view
of floor plan
 
(will take a moment to load due to size)

*material list only sold with plan of same number

  

 

List of House Plans

  

under 1000 sq ft

 
F-648 A F-780 A  

1000 - 1200 sq ft

 
F-1001 A
F-1008
A
F-1010
A
F-1055
F-1080
F-1104

F-1180
 

1200 - 1399 sq ft

 
F-1213
F-1250
A
F-1252
A
F-1280
C-1285
F-1300 A
F-1318
A
F-1338
A
F-1390
A
 

1400 - 1499 sq ft

 
F-1400 A
F-1430
A
F-1440
A
F-1441
A
C-1450
F-1460
F-1464
F-1472
 

1500 - 1699 sq ft

 
F-1500
F-1505
F-1516
F-1541
F-1545
F-1553
F-1554
F-1560
F-1568
F-1570
F-1585 A
F-1586
F-1590
F-1600
F-1622
F-1660
F-1674
F-1678
F-1680 A
F-1686 A
 

1700 - 1899 sq ft

 
F-1704
F-1708
F-1710
F-1728
A
F-1735
F-1745
F-1750
A
F-1755
A
F-1780 A
F-1796
F-1798
F-1800
F-1805
F-1810
F-1813
F-1860
F-1880
A
 

1900 - 2110 sq ft

 
F-1945
F-1950

F-1960 A
F-1975
F-1990 A
F-2040
F-2047
F-2058
F-2080
A
F-2110
A
 

2120 - 2500 sq ft

 
F-2128
F-2160 A
C-2200 A
F-2230
F-2300 A
F-2378
F-2382
 
above 2500 sq ft  
F-2540 A
F-2544
F-2600
F-2670 A
F-2874
F-3110
 

Log Plans

  

under 1000 sq ft

 
L-320 A
L-648
L-780
L-800 A
L-950
 

1000 - 1200 sq ft

 
L-1000
L-1001
L-1008
L-1080
L-1104
L-1180
 

1200 - 1399 sq ft

 
L-1252
L-1280

L-1300
L-1318
L-1390
 

1400 - 1499 sq ft

 
L-1430 L-1450  

1500 - 1699 sq ft

 
 L-1680    

1700 - 1899 sq ft

 
L-1735    

1900 - 2110 sq ft

 
L-1950  L-2230  

2120 - 2500 sq ft

 
L-2160 L-2300  
above 2500 sq ft  
L-2540    
A =alternate included
= includes actual photos
(click on photo button on plan page)

 


(click the square footage of the house plan you want to view) Look at small, or tiny homes.

Custom Home Plans Inc  - http://www.natalieplans.com
706-782-5637
4747 Murray Cove Road, Tiger, Georgia 30576
Email Natalie Howard

Copyright © 1998-2017 Natalie Howard. All rights reserved.
Last Revised: July 13, 2017