House plans by Natalie Howard

Country Plan F-2544

Country Plan F-2544

Copyright © 1998-2015 Natalie Howard. All rights reserved.

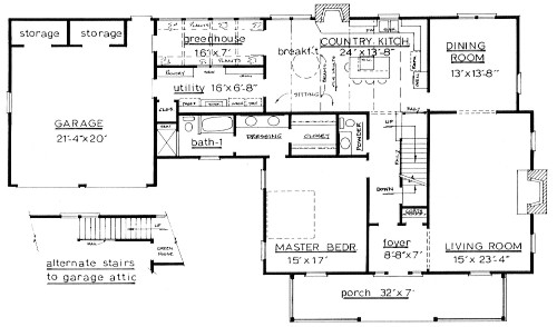
Country Plan F-2544 First Floor

Country Plan F-2544 Second Floor

Country Plan F-2544 Alternate Bedrooms
Alternate Bedrooms (above)

How to Order

Plan F-2544
First Floor: 1716 sq ft
Second Floor: 828 sq ft
Length: 78'   
Bedrooms 3/4 Fireplace 1
Bathrooms 3.5 Porch 1
Floors 2

Number of Sets

Plan F-2544 offers more formality with its separate foyer and dining room.  The master bedroom has a deep walk-in closet next to the dressing area.  The bath has a separate shower and a garden tub. The kitchen fireplace is a plus in this country kitchen with its breakfast island and french doors to the greenhouse. Also note the long wall for a hutch or a television.  A Victorian window highlights the sitting room between the two upstairs bedrooms.  This area makes a good study or office with its closet and low storage areas. Bath-2 has two separate vanities for time saving school preparations.  An alternate plan shows a 4th bedroom and two separate upstairs baths.  The charming utility with sewing space has a closet in addition to the sink and freezer. The greenhouse creates a pleasant walk-thru from the garage. Also, an alternate stairway to an attic above the two car garage is shown in the plans. A basement floor plan is included.

click for larger view 
of floor plan
 
(will take a moment to load due to size)

*material list only sold with plan of same number

  

 

List of House Plans

  

under 1000 sq ft

 
F-648 A F-780 A  

1000 - 1200 sq ft

 
F-1001 A
F-1008
A
F-1010
A
F-1055
F-1080
F-1104

F-1180
 

1200 - 1399 sq ft

 
F-1213
F-1250
A
F-1252
A
F-1280
C-1285
F-1300 A
F-1318
A
F-1338
A
F-1390
A
 

1400 - 1499 sq ft

 
F-1400 A
F-1430
A
F-1440
A
F-1441
A
C-1450
F-1460
F-1464
F-1472
 

1500 - 1699 sq ft

 
F-1500
F-1505
F-1516
F-1541
F-1545
F-1553
F-1554
F-1560
F-1568
F-1570
F-1585 A
F-1586
F-1590
F-1600
F-1622
F-1660
F-1674
F-1678
F-1680 A
F-1686 A
 

1700 - 1899 sq ft

 
F-1704
F-1708
F-1710
F-1728
A
F-1735
F-1745
F-1750
A
F-1755
A
F-1780 A
F-1796
F-1798
F-1800
F-1805
F-1810
F-1813
F-1860
F-1880
A
 

1900 - 2110 sq ft

 
F-1945
F-1950

F-1960 A
F-1975
F-1990 A
F-2040
F-2047
F-2058
F-2080
A
F-2110
A
 

2120 - 2500 sq ft

 
F-2128
F-2160 A
C-2200 A
F-2230
F-2300 A
F-2378
F-2382
 
above 2500 sq ft  
F-2540 A
F-2544
F-2600
F-2670 A
F-2874
F-3110
 

Log Plans

  

under 1000 sq ft

 
L-320 A
L-648
L-780
L-800 A
L-950
 

1000 - 1200 sq ft

 
L-1000
L-1001
L-1008
L-1080
L-1104
L-1180
 

1200 - 1399 sq ft

 
L-1252
L-1280

L-1300
L-1318
L-1390
 

1400 - 1499 sq ft

 
L-1430 L-1450  

1500 - 1699 sq ft

 
 L-1680    

1700 - 1899 sq ft

 
L-1735    

1900 - 2110 sq ft

 
L-1950  L-2230  

2120 - 2500 sq ft

 
L-2160 L-2300  
above 2500 sq ft  
L-2540    
A =alternate included
= includes actual photos
(click on photo button on plan page)

 


(click the square footage of the house plan you want to view) Look at small, or tiny homes.

Custom Home Plans Inc  - http://www.natalieplans.com
706-782-5637
4747 Murray Cove Road, Tiger, Georgia 30576
Email Natalie Howard

Copyright © 1998-2017 Natalie Howard. All rights reserved.
Last Revised: July 13, 2017