House plans by Natalie Howard

Country Plan C-2200

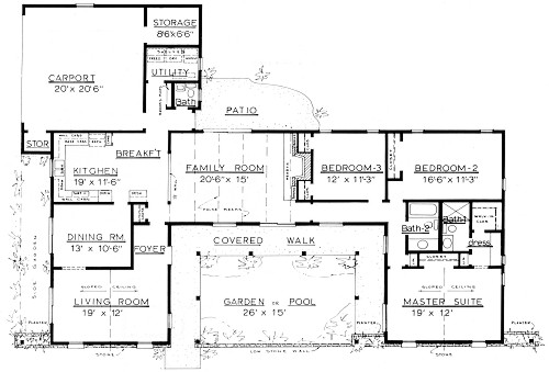
A built-in oven and handy desk are a bonus to the home keeper. Note the kitchen is traffic-free. With furniture arranged in front of the fireplace, the long room allows a game area near the breakfast area. A half-bath at the utility room is convenient for small children coming in from play.

Country Contemporary Home Plan C-2200

Copyright © 1998-2015 Natalie Howard. All rights reserved.

Country Contemporary Plan F-2200 First Floor

How to Order

Plan C-2200
First Floor: 2125 sq ft
Length: 88’
Bedrooms 3 Fireplace 1
Bathrooms 2.5 Patio 1
Floors 1    

Number of Sets

This contemporary ranch style encloses a private garden or swimming pool. The covered walk protects the swimmer and pool furniture from the sun. The garden area is accessed by doors from the family room. Stone veneers the front gables and creates an attractive low wall.

The foyer opens to separate living room and dining room. The convenient U-shape kitchen & breakfast area overlooks the low wall into the long family room to the fireplace.

Built-in oven and handy desk are a bonus to the homekeeper. Note the kitchen is traffic-free. With furniture arranged in front of the fireplace, the long room allows a game area near the breakfast area. A half bath at the utility room is convenient for small children coming in from play.

A vaulted ceiling is shown in the master bedroom. Also included in the plan is an alternate master bath with separate shower and tub. Garage doors can be added to the open carport.
Alternate includes:
• enlarged master bathroom w/shower & separate tub 
• large walk-in closet
• longer dining room
• rear screen porch
• alternate basement plan 

View alternate C-2200

click for larger view 
of floor plan
 
(will take a moment to load due to size)

*material list only sold with plan of same number

  

 

List of House Plans

  

under 1000 sq ft

 
F-648 A F-780 A  

1000 - 1200 sq ft

 
F-1001 A
F-1008
A
F-1010
A
F-1055
F-1080
F-1104

F-1180
 

1200 - 1399 sq ft

 
F-1213
F-1250
A
F-1252
A
F-1280
C-1285
F-1300 A
F-1318
A
F-1338
A
F-1390
A
 

1400 - 1499 sq ft

 
F-1400 A
F-1430
A
F-1440
A
F-1441
A
C-1450
F-1460
F-1464
F-1472
 

1500 - 1699 sq ft

 
F-1500
F-1505
F-1516
F-1541
F-1545
F-1553
F-1554
F-1560
F-1568
F-1570
F-1585 A
F-1586
F-1590
F-1600
F-1622
F-1660
F-1674
F-1678
F-1680 A
F-1686 A
 

1700 - 1899 sq ft

 
F-1704
F-1708
F-1710
F-1728
A
F-1735
F-1745
F-1750
A
F-1755
A
F-1780 A
F-1796
F-1798
F-1800
F-1805
F-1810
F-1813
F-1860
F-1880
A
 

1900 - 2110 sq ft

 
F-1945
F-1950

F-1960 A
F-1975
F-1990 A
F-2040
F-2047
F-2058
F-2080
A
F-2110
A
 

2120 - 2500 sq ft

 
F-2128
F-2160 A
C-2200 A
F-2230
F-2300 A
F-2378
F-2382
 
above 2500 sq ft  
F-2540 A
F-2544
F-2600
F-2670 A
F-2874
F-3110
 

Log Plans

  

under 1000 sq ft

 
L-320 A
L-648
L-780
L-800 A
L-950
 

1000 - 1200 sq ft

 
L-1000
L-1001
L-1008
L-1080
L-1104
L-1180
 

1200 - 1399 sq ft

 
L-1252
L-1280

L-1300
L-1318
L-1390
 

1400 - 1499 sq ft

 
L-1430 L-1450  

1500 - 1699 sq ft

 
 L-1680    

1700 - 1899 sq ft

 
L-1735    

1900 - 2110 sq ft

 
L-1950  L-2230  

2120 - 2500 sq ft

 
L-2160 L-2300  
above 2500 sq ft  
L-2540    
A =alternate included
= includes actual photos
(click on photo button on plan page)

 


(click the square footage of the house plan you want to view) Look at small, or tiny homes.

Custom Home Plans Inc  - http://www.natalieplans.com
706-782-5637
4747 Murray Cove Road, Tiger, Georgia 30576
Email Natalie Howard

Copyright © 1998-2017 Natalie Howard. All rights reserved.
Last Revised: July 13, 2017