Copyright © 1998-2015 Natalie
Howard. All rights reserved.


*material list only sold with plan of same number
|
How to Order |
Plan
F-1975
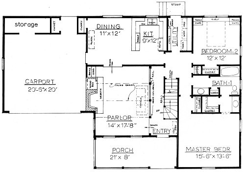
First Floor: 1285 sq ft
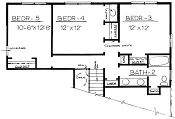
Second Floor: 690 sq ft
Length: 60 |
| Bedrooms |
4/5 |
|
Fireplace |
1 |
| Bathrooms |
2 |
|
Porch |
1 |
| Floors |
2 |
|
|
|
|
|
| Five bedrooms are featured in this country home with its wide, lazy porch. The parlor has one step down from the foyer which is edged with columns and a rail. This step can eliminated if desired. The U-shaped kitchen is opened to the dining area. The utility room has an outside entrance, handy for small children, coming in from play. The master bedroom has an alternate private bath with a garden tub. Bedroom-2 could be used as an office. The second floor has three bedrooms and a compartmented bath. Note the extra vanity closet in Bedroom-4. The storage area over the living room can be left open with a rail at upstairs hall. The two car garage can be opened from the side or the front. |
|
click for larger
view
of floor plan
(will take a moment to load due to size)
|
|