House plans by Natalie Howard

Country Plan F-1745

Need a Country French style home with a hip roof? This Country French Porch with its extra tall columns highlights this Country French home.

Country Plan F-1745

Copyright © 1998-2015 Natalie Howard. All rights reserved.

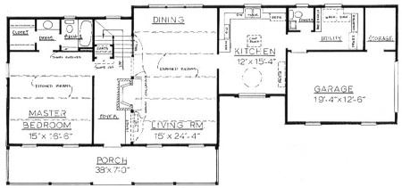
Country Plan F-1745 First Floor

Country Plan F-1745 Alternate Bath

How to Order

Plan F-1745
First Floor: 1208 sq ft
Second Floor: 537 sq ft
Length: 70'   
Bedrooms 3 Fireplace 1
Bathrooms 2.5 Porch 1
Floors 2    

Number of Sets

An extra tall country porch with its columns highlights this country French home. The foyer is enhanced by the brick wall formed by the fireplace. The wide master bedroom has a walk-n closet and an alternate plan that provides a separate shower and a tall country porch with its columns highlights this country French home. The foyer is enhanced by the brick wall formed by the fireplace. The wide master bedroom has a walk-n closet and an alternate plan that provides a separate shower and Jacuzzi tub.
Alternates included:
• separate shower & Jacuzzi tub in master bath
• split master closets

Click here for a photo of the home View photo

click for larger view 
of floor plan
 
(will take a moment to load due to size)

Alternate Garage

 

*material list only sold with plan of same number

  

 

List of House Plans

  

under 1000 sq ft

 
F-648 A F-780 A  

1000 - 1200 sq ft

 
F-1001 A
F-1008
A
F-1010
A
F-1055
F-1080
F-1104

F-1180
 

1200 - 1399 sq ft

 
F-1213
F-1250
A
F-1252
A
F-1280
C-1285
F-1300 A
F-1318
A
F-1338
A
F-1390
A
 

1400 - 1499 sq ft

 
F-1400 A
F-1430
A
F-1440
A
F-1441
A
C-1450
F-1460
F-1464
F-1472
 

1500 - 1699 sq ft

 
F-1500
F-1505
F-1516
F-1541
F-1545
F-1553
F-1554
F-1560
F-1568
F-1570
F-1585 A
F-1586
F-1590
F-1600
F-1622
F-1660
F-1674
F-1678
F-1680 A
F-1686 A
 

1700 - 1899 sq ft

 
F-1704
F-1708
F-1710
F-1728
A
F-1735
F-1745
F-1750
A
F-1755
A
F-1780 A
F-1796
F-1798
F-1800
F-1805
F-1810
F-1813
F-1860
F-1880
A
 

1900 - 2110 sq ft

 
F-1945
F-1950

F-1960 A
F-1975
F-1990 A
F-2040
F-2047
F-2058
F-2080
A
F-2110
A
 

2120 - 2500 sq ft

 
F-2128
F-2160 A
C-2200 A
F-2230
F-2300 A
F-2378
F-2382
 
above 2500 sq ft  
F-2540 A
F-2544
F-2600
F-2670 A
F-2874
F-3110
 

Log Plans

  

under 1000 sq ft

 
L-320 A
L-648
L-780
L-800 A
L-950
 

1000 - 1200 sq ft

 
L-1000
L-1001
L-1008
L-1080
L-1104
L-1180
 

1200 - 1399 sq ft

 
L-1252
L-1280

L-1300
L-1318
L-1390
 

1400 - 1499 sq ft

 
L-1430 L-1450  

1500 - 1699 sq ft

 
 L-1680    

1700 - 1899 sq ft

 
L-1735    

1900 - 2110 sq ft

 
L-1950  L-2230  

2120 - 2500 sq ft

 
L-2160 L-2300  
above 2500 sq ft  
L-2540    
A =alternate included
= includes actual photos
(click on photo button on plan page)

 


(click the square footage of the house plan you want to view) Look at small, or tiny homes.

Custom Home Plans Inc  - http://www.natalieplans.com
706-782-5637
4747 Murray Cove Road, Tiger, Georgia 30576
Email Natalie Howard

Copyright © 1998-2017 Natalie Howard. All rights reserved.
Last Revised: July 13, 2017