House plans by Natalie Howard

Country Plan F-1810

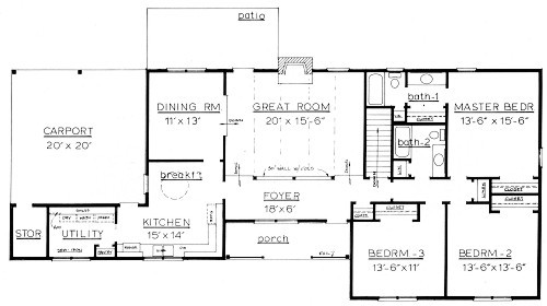
Need a small office near your garage? A well-planned Utility Room provides a pantry closet and washer, dryer, freezer or sink space. The extra space under the double windows can be used for sewing or ironing, or even better, a small computer station. By eliminating the storage room off the Carport or Garage, the extra space can become a small home office.

Country Home Plan F-1810

Copyright © 1998-2015 Natalie Howard. All rights reserved.

Country Home Plan F-1810 First Floor

How to Order

Plan F-1810
First Floor: 1810 sq ft
Length: 78'   
Bedrooms 3 Fireplace 1
Bathrooms 2 Porch 1
Floors 1    

Number of Sets

The wide, open Great Room greets the visitor with a view of the fireplace and the patio beyond. You have an option of a step down from the Foyer and the Dining Room. A low wall separates the Foyer from the Great Room. A cozy breakfast area is in the corner of the roomy kitchen. Long counters provide plenty of workspace for the homemaker. A well-planned Utility Room provides a pantry closet and washer, dryer, freezer spaces. The extra space under the double windows can be used for sewing or ironing, or even better, a small computer station. By eliminating the storage room off the Carport or Garage, more space can be added in the Utility Room. The long Master Bedroom has plenty of wall space for king-sized bed and chests. Linen closets are found in both baths and the hallway. An alternate bath plan separates the shower and tub for a larger master bath. Stairs lead to a full basement.

click for larger view 
of floor plan
 
(will take a moment to load due to size)

*material list only sold with plan of same number

  

 

List of House Plans

  

under 1000 sq ft

 
F-648 A F-780 A  

1000 - 1200 sq ft

 
F-1001 A
F-1008
A
F-1010
A
F-1055
F-1080
F-1104

F-1180
 

1200 - 1399 sq ft

 
F-1213
F-1250
A
F-1252
A
F-1280
C-1285
F-1300 A
F-1318
A
F-1338
A
F-1390
A
 

1400 - 1499 sq ft

 
F-1400 A
F-1430
A
F-1440
A
F-1441
A
C-1450
F-1460
F-1464
F-1472
 

1500 - 1699 sq ft

 
F-1500
F-1505
F-1516
F-1541
F-1545
F-1553
F-1554
F-1560
F-1568
F-1570
F-1585 A
F-1586
F-1590
F-1600
F-1622
F-1660
F-1674
F-1678
F-1680 A
F-1686 A
 

1700 - 1899 sq ft

 
F-1704
F-1708
F-1710
F-1728
A
F-1735
F-1745
F-1750
A
F-1755
A
F-1780 A
F-1796
F-1798
F-1800
F-1805
F-1810
F-1813
F-1860
F-1880
A
 

1900 - 2110 sq ft

 
F-1945
F-1950

F-1960 A
F-1975
F-1990 A
F-2040
F-2047
F-2058
F-2080
A
F-2110
A
 

2120 - 2500 sq ft

 
F-2128
F-2160 A
C-2200 A
F-2230
F-2300 A
F-2378
F-2382
 
above 2500 sq ft  
F-2540 A
F-2544
F-2600
F-2670 A
F-2874
F-3110
 

Log Plans

  

under 1000 sq ft

 
L-320 A
L-648
L-780
L-800 A
L-950
 

1000 - 1200 sq ft

 
L-1000
L-1001
L-1008
L-1080
L-1104
L-1180
 

1200 - 1399 sq ft

 
L-1252
L-1280

L-1300
L-1318
L-1390
 

1400 - 1499 sq ft

 
L-1430 L-1450  

1500 - 1699 sq ft

 
 L-1680    

1700 - 1899 sq ft

 
L-1735    

1900 - 2110 sq ft

 
L-1950  L-2230  

2120 - 2500 sq ft

 
L-2160 L-2300  
above 2500 sq ft  
L-2540    
A =alternate included
= includes actual photos
(click on photo button on plan page)

 


(click the square footage of the house plan you want to view) Look at small, or tiny homes.

Custom Home Plans Inc  - http://www.natalieplans.com
706-782-5637
4747 Murray Cove Road, Tiger, Georgia 30576
Email Natalie Howard

Copyright © 1998-2017 Natalie Howard. All rights reserved.
Last Revised: July 13, 2017