House plans by Natalie Howard

Cozy Country Home Plan F-1600 with half-story above

Sitting Area in Master Bedroom. The Master Bedroom is long enough to use a couple of chairs as a sitting area.

Country Plan F-1600

Copyright © 1998-2015 Natalie Howard. All rights reserved.

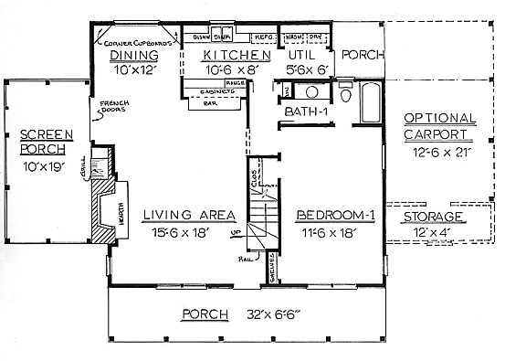
Country Plan F-1600 First Floor

How to Order

Plan F-1600
First Floor: 950 sq ft
Second Floor: 680 sq ft
Length: 56'-6"
Bedrooms 3 Fireplace 1
Bathrooms 2 Porch 3
Floors 2    

Number of Sets

The open living and dining room enjoys the French doors to the screen porch. A cozy bar keeps snackers out of the cook's way. The side rear porch leads to the mud-utility area which is convenient to the hall bath for small children. The master bedroom is long enough to use a couple of chairs for a sitting area. The bedrooms upstairs each have an alcove; bedroom-2 shows a small study or storage area An optional carport or garage can be added to access the rear porch.
Alternates include:
An optional larger master bathroom with walk-in closet is shown between a double garage or a single open carport addition. The Utility / Mud Room with sink and pantry connects to the carport or garage that has stairs to attic storage

Click here for a photo of the home View photo

Country Plan F-1600 Second Floor

*material list only sold with plan of same number

  

 

List of House Plans

  

under 1000 sq ft

 
F-648 A F-780 A  

1000 - 1200 sq ft

 
F-1001 A
F-1008
A
F-1010
A
F-1055
F-1080
F-1104

F-1180
 

1200 - 1399 sq ft

 
F-1213
F-1250
A
F-1252
A
F-1280
C-1285
F-1300 A
F-1318
A
F-1338
A
F-1390
A
 

1400 - 1499 sq ft

 
F-1400 A
F-1430
A
F-1440
A
F-1441
A
C-1450
F-1460
F-1464
F-1472
 

1500 - 1699 sq ft

 
F-1500
F-1505
F-1516
F-1541
F-1545
F-1553
F-1554
F-1560
F-1568
F-1570
F-1585 A
F-1586
F-1590
F-1600
F-1622
F-1660
F-1674
F-1678
F-1680 A
F-1686 A
 

1700 - 1899 sq ft

 
F-1704
F-1708
F-1710
F-1728
A
F-1735
F-1745
F-1750
A
F-1755
A
F-1780 A
F-1796
F-1798
F-1800
F-1805
F-1810
F-1813
F-1860
F-1880
A
 

1900 - 2110 sq ft

 
F-1945
F-1950

F-1960 A
F-1975
F-1990 A
F-2040
F-2047
F-2058
F-2080
A
F-2110
A
 

2120 - 2500 sq ft

 
F-2128
F-2160 A
C-2200 A
F-2230
F-2300 A
F-2378
F-2382
 
above 2500 sq ft  
F-2540 A
F-2544
F-2600
F-2670 A
F-2874
F-3110
 

Log Plans

  

under 1000 sq ft

 
L-320 A
L-648
L-780
L-800 A
L-950
 

1000 - 1200 sq ft

 
L-1000
L-1001
L-1008
L-1080
L-1104
L-1180
 

1200 - 1399 sq ft

 
L-1252
L-1280

L-1300
L-1318
L-1390
 

1400 - 1499 sq ft

 
L-1430 L-1450  

1500 - 1699 sq ft

 
 L-1680    

1700 - 1899 sq ft

 
L-1735    

1900 - 2110 sq ft

 
L-1950  L-2230  

2120 - 2500 sq ft

 
L-2160 L-2300  
above 2500 sq ft  
L-2540    
A =alternate included
= includes actual photos
(click on photo button on plan page)

 


(click the square footage of the house plan you want to view) Look at small, or tiny homes.

Custom Home Plans Inc  - http://www.natalieplans.com
706-782-5637
4747 Murray Cove Road, Tiger, Georgia 30576
Email Natalie Howard

Copyright © 1998-2017 Natalie Howard. All rights reserved.
Last Revised: July 13, 2017