Copyright © 1998-2015 Natalie Howard. All rights reserved.

Alternate Master
Bath
|
How to Order |
Plan F-1560
First Floor: 1160 sq ft
Second Floor: 490 sq ft
Length: 58'
Alternate adds sq footage |
| Bedrooms |
3 |
|
Fireplace |
1 |
| Bathrooms |
2.5 |
|
Porch |
1 |
| Floors |
2 |
|
|
|
|
|
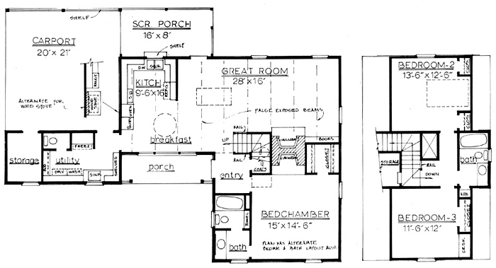
| Double fireplaces are featured in
their country plan. The long great room offers privacy for TV viewing near the fireplace
and ample space for country dining furniture. The screen porch expands dining area in
rainy weather. The carport can become a double garage. The utility room includes a commode
stall for young children, a sink and freezer space. Winding stairs lead to two bedrooms
with a bath. The master bedroom has a conventional bath, but has the plan has two
alternates: one with separate tub and shower. For backup heat in remote areas a wood stove
is planned. |
Alternates included:
• separate tub & Jacuzzi tub
• open stairway
• fireplace on exterior wall |
|