Copyright © 1998-2015 Natalie Howard. All rights reserved.

|
How to Order |
Plan F-1708
First Floor: 1158 sq ft
Second Floor: 550 sq ft
4th bedroom: 175 sq ft
Length: 67' |
| Bedrooms |
3/4 |
|
Fireplace |
1 |
| Bathrooms |
2.5 |
|
Porch |
2 |
| Floors |
2 |
|
|
|
|
|
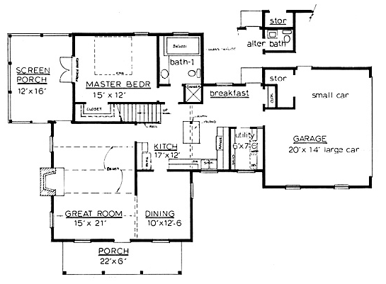
| This quaint cottage has a separate
dining room along side the great room. Both the living room and master bedroom access the
screen porch. The main bath has a separate tub and shower. A long kitchen allows space for
a working island and extra cabinets. An alternate half bath can be placed at the rear
entrance or a full two car garage can be built. Between the two or three bedrooms the
stairway lands in a wide upstairs hall with a large linen closet The storage room can
become a 4th bedroom. |
|