Copyright © 1998-2015 Natalie Howard. All rights reserved.

|
How to Order |
Plan F-1545
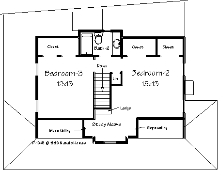
First Floor: 1114 sq ft
Second Floor: 643 sq ft
Length: 44 |
| Bedrooms |
3 |
|
Fireplace |
1 |
| Bathrooms |
2+ |
|
Porch |
2 |
| Floors |
2 |
|
|
|
|
|
This plan, F-1545, is an alternate of the smaller plan,
F-1390, but it has added a 6 foot wrap
porch and a master bath with Jacuzzi and separate shower. Also, the
garage is enclosed for two cars. Notice the kitchen is a convenient
U-shape with a short bar and has a washer/dryer closet. The dining
is more separate, but it still has the French doors to the shared
screen porch which is also accessible from the Parlor.
Note upstairs, Bedroom-2 has a bonus Study Alcove within the front
dormer window over the wrap Country Porch. The sloped ceilings
create deep bedroom closets. |
|