House plans by Natalie Howard

Country Plan F-1390 & Alternate

A long parlor opens with French doors to the side screen porch which can be accessed also from the dining area. Functional 'U' shaped kitchen is traffic free and has a long pleasant view thru dining area to screen porch.
 

Standard Plan
  

Country Plan F-1390 First Floor

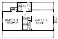
           Country Plan F-1390 Second Floor
  

  Alternate version  
(accompanies plan)

Country Plan F-1390 Alternate

Country Plan F-1390 First Floor Alternate

Country Home Plan F-1390 Second Floor Alternate
  

Click on one of the images above and when purchasing you will receive
basic and alternate plans with your order of F-1390.

Click here for a photo of the home View photo

  

 

List of House Plans

  

under 1000 sq ft

 
F-648 A F-780 A  

1000 - 1200 sq ft

 
F-1001 A
F-1008
A
F-1010
A
F-1055
F-1080
F-1104

F-1180
 

1200 - 1399 sq ft

 
F-1213
F-1250
A
F-1252
A
F-1280
C-1285
F-1300 A
F-1318
A
F-1338
A
F-1390
A
 

1400 - 1499 sq ft

 
F-1400 A
F-1430
A
F-1440
A
F-1441
A
C-1450
F-1460
F-1464
F-1472
 

1500 - 1699 sq ft

 
F-1500
F-1505
F-1516
F-1541
F-1545
F-1553
F-1554
F-1560
F-1568
F-1570
F-1585 A
F-1586
F-1590
F-1600
F-1622
F-1660
F-1674
F-1678
F-1680 A
F-1686 A
 

1700 - 1899 sq ft

 
F-1704
F-1708
F-1710
F-1728
A
F-1735
F-1745
F-1750
A
F-1755
A
F-1780 A
F-1796
F-1798
F-1800
F-1805
F-1810
F-1813
F-1860
F-1880
A
 

1900 - 2110 sq ft

 
F-1945
F-1950

F-1960 A
F-1975
F-1990 A
F-2040
F-2047
F-2058
F-2080
A
F-2110
A
 

2120 - 2500 sq ft

 
F-2128
F-2160 A
C-2200 A
F-2230
F-2300 A
F-2378
F-2382
 
above 2500 sq ft  
F-2540 A
F-2544
F-2600
F-2670 A
F-2874
F-3110
 

Log Plans

  

under 1000 sq ft

 
L-320 A
L-648
L-780
L-800 A
L-950
 

1000 - 1200 sq ft

 
L-1000
L-1001
L-1008
L-1080
L-1104
L-1180
 

1200 - 1399 sq ft

 
L-1252
L-1280

L-1300
L-1318
L-1390
 

1400 - 1499 sq ft

 
L-1430 L-1450  

1500 - 1699 sq ft

 
 L-1680    

1700 - 1899 sq ft

 
L-1735    

1900 - 2110 sq ft

 
L-1950  L-2230  

2120 - 2500 sq ft

 
L-2160 L-2300  
above 2500 sq ft  
L-2540    
A =alternate included
= includes actual photos
(click on photo button on plan page)

 


(click the square footage of the house plan you want to view) Look at small, or tiny homes.

Custom Home Plans Inc  - http://www.natalieplans.com
706-782-5637
4747 Murray Cove Road, Tiger, Georgia 30576
Email Natalie Howard

Copyright © 1998-2017 Natalie Howard. All rights reserved.
Last Revised: July 13, 2017