|

Copyright © 1998-2015 Natalie
Howard. All rights reserved.
|
How to Order |
Plan
F-2600
First Floor: 1750 sq ft
Second Floor: 896 sq ft
Length: 73' |
| Bedrooms |
3 |
|
Fireplace |
2 |
| Bathrooms |
2.5 |
|
Porch |
2 |
| Floors |
2 |
|
|
|
|
|
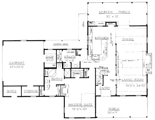
The eleven foot wide
Country Porch provides ample space for many rockers and front
porch visiting on long summer nights. Inside wood columns and the
open rail edge the raised foyer floor. Double doors open to an
enormous "GREAT ROOM" formed by the 3 combined rooms:
Kitchen, Dining and Living areas. The oversized fireplace has its
own wood box and can be enjoyed from all angles of the open living
spaces. The kitchen has a built-in oven in brick and many cabinets
with a long convenient "working bar" that can seat
several people. The 'pass-thru window at the rear of the kitchen
allows handy serving to the large Screen Porch with its own grill
space. This house rambles as the "old southern farm
houses" with interesting lines and features.
The extra long Master Suite has its own fireplace with easy
viewing from the bed space. The bath offers a separate shower and
a corner tub with two bathroom closets. The Utility Room has a
half bath with commode separated from vanity for quick clean-ups.
Ironing board, sewing machine or computer space is located below a
rear utility window. A covered walkway accesses the two-car garage
or carport. Note the small shop with its own window that opens
with wide doors to the garage for managing long boards, etc.. The
bike storage is shown with a Dutch door.
Upstairs the two very large Bedrooms share a private bathroom.
These rooms can accommodate two beds and dressers in each with
their long lengths. Charming widow seats divide the closets in
each room. An oversized closet, a linen closet and window seat are
also located in the upstairs hallway. |
|
click for larger view
of floor plan
(will take a moment to load due to size)
|
|