
Copyright © 1998-2015 Natalie Howard. All rights reserved.

(alternate stairway shown on right) |
How to Order |
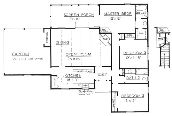
Plan F-1441
First Floor: 1441 sq ft
Length: 62' |
| Bedrooms |
3 |
|
Fireplace |
1+ |
| Bathrooms |
2 |
|
Porch |
1 |
| Floors |
1 |
|
|
|
|
|
| The long screen porch in this plan, F-1441, is enjoyed from both the master bedroom and the great room. An optional wood stove or gas logs in the master bedroom can use the same chimney as the main fireplace. Two extra bedrooms share the hall bath. A utility closet with washer/dryer is convenient to breakfast table for folding clothes. While an alternate stairway is shown for accessing a basement level, the plan does not show a full basement floor plan, only a crawl space. |
View
alternate F-1441 |
|