Copyright © 1998-2015 Natalie Howard. All rights reserved.

*material list only sold with plan of same number |
How to Order |
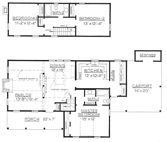
Plan F-1585
First Floor: 1065 sq ft
Second Floor: 520 sq ft
Length: 60' |
| Bedrooms |
3 |
|
Fireplace |
1 |
| Bathrooms |
2 |
|
Porch |
1 |
| Floors |
2 |
|
|
|
|
|
| The narrow second level with its open stair rail makes this house plan, F-1585, more country. The wide parlor and dining room are separated by columns and a low wall. This openness allows a long, attractive view of the fireplace from the dining table. The optimal location of doorways and stairs reduce unnecessary traffic thru formal areas. An alternate double garage and master bath with separate shower and tub are included in the floor plan. |
View
alternate F-1585 |
|
View photo |
|