Copyright © 1998-2015 Natalie Howard. All rights reserved.

|
How to Order |
Plan F-1680
First Floor: 1127 sq ft
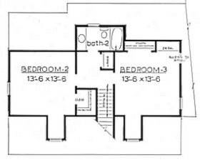
Second Floor: 553 sq ft
Length: 64
Alternate F-1680: 1997 sq ft
Length of Alternate: 75'' |
| Bedrooms |
3 |
|
Fireplace |
1 |
| Bathrooms |
2 |
|
Porch |
2 |
| Floors |
2 |
|
|
|
|
|
Two dormers top this interesting
country home. The foyer is opened to the parlor with columns and a low wall which can be
eliminated, using a laminated beam. A long screen porch extends dining area. The plan has
alternates for two kitchen layouts; one with a window at the kitchen sink and breakfast
area. The alternate plan has more square footage, but offers a larger master bath with
separate shower and tub. Also, the alternate plan adds 2 feet into the dining room and 2
feet into the two upstairs bedrooms. The single garage can be enlarged to accommodate two
cars.
This floor plan is also available with chinked log exterior. |
Alternates included:
• double garage & washer/dryer closet
• breakfast area & separate 1/2 bath
• Jacuzzi tub w/separate shower in master bath
• longer screen porch
• open foyer stairs |
|
View
alternate
F-1680 |
View photo |
|