Copyright © 1998-2015 Natalie
Howard. All rights reserved.

*material list only sold with plan of same number |
How to Order |
Plan F-1755
First Floor: 1745 sq ft
Second Floor: 300 sq ft
Length: 76' |
| Bedrooms |
3/4 |
|
Fireplace |
2 |
| Bathrooms |
3.5 |
|
Porch |
2 |
| Floors |
2 |
|
|
|
|
|
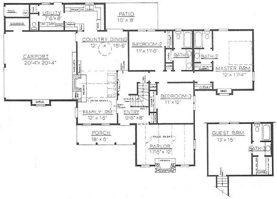
| Four bedrooms are available when the shed roof over Bedroom-2 forms the guest room with its own private bath. This home plan, F-1755, provides the family with an all purpose family room and a generous sized country dining area. The narrow kitchen with its rear exit thru the utility room is convenient for working since it is not in the traffic flow from the garage. For those folks that garden, this rear entry to a sink and commode keeps the soiled shoes from tracking thru the main house. The open rail with columns and a step down, look into the wide fireplace and wood box. The formal parlor with its own stone fireplace is placed away from the noise of the general living. This plan has a basement plan. |
|
View alternate
F-1755 |
|