House plans by Natalie Howard

Country Plan F-1990

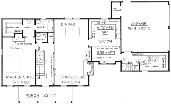
Need an out-of-the way Office area? This Mini-Office with its rail overlooks the Country Kitchen Breakfast area below. Low ceiling closets can store office files.

Country Plan F-1990

Copyright © 1998-2015 Natalie Howard. All rights reserved.

Country Plan F-1990 - First Floor

Country Home Plan F-1990 - Second Floor


              Alternate Bathroom

How to Order

Plan F-1990
First Floor: 1402 sq ft
Second Floor: 590 sq ft
Playroom: 400 sq ft
Length: 69'   
Bedrooms 3 Fireplace 1
Bathrooms 2.5 Porch 2
Floors 2    

Number of Sets

Stone with board & batten siding makes this a Country Gentleman's Home. As with most of our plans the siding can be changed to suit the owner. The Country Porch leads into a raised entry and a stairway that opens to the Great Room. A wide view of the living area shows off the fireplace with its flanking bookshelves and television space. The step-down is edged with an open rail. Ample wall space can display dining furniture.
The Country Kitchen uses the convenient "U" shape with built-in ovens. Ceiling over the breakfast table is open to the mini-office above. A boxed seat adds coziness to the breakfast table. Note two walls offer space for both, a hutch and a TV.
Playroom is reached from a backstairs in the utility room. This generous sized room has space to fold clothes and to sew beneath a low front window. Besides a closet there is extra space for an ironing board and freezer. Low storage is seen behind carport or garage.
Powder room and coat closet are located opposite the basement door. Master Suite is large enough for king-size bed and a seating area around the fireplace. Plan offers two master bath designs. The large bath has a separate Jacuzzi tub and shower. Separate vanities are enjoyed by busy couples. Walk-in closet is near the bath area.
Bedroom 3 also has a built-in desk and double windows.
Bedroom-2 has space for built-in desk or seat with double windows. Long walk-in closet provides extra closet space for teenage daughter. Doorway to open walk-way gives another fire escape for young ones.
The mini-office has a rail that could become a low wall for a child's play house. Low ceiling closets can store toys. The long Playroom has low side walls with windows at each end. Note the base of the stairway is closed for heat efficiency. Bedroom-3 also has a built-in desk and double windows. The Plan F-1990 offers alternate dormer windows for each bedroom.

View alternate F-1990

Click here for a photo of the home View photo

*material list only sold with plan of same number

  

 

List of House Plans

  

under 1000 sq ft

 
F-648 A F-780 A  

1000 - 1200 sq ft

 
F-1001 A
F-1008
A
F-1010
A
F-1055
F-1080
F-1104

F-1180
 

1200 - 1399 sq ft

 
F-1213
F-1250
A
F-1252
A
F-1280
C-1285
F-1300 A
F-1318
A
F-1338
A
F-1390
A
 

1400 - 1499 sq ft

 
F-1400 A
F-1430
A
F-1440
A
F-1441
A
C-1450
F-1460
F-1464
F-1472
 

1500 - 1699 sq ft

 
F-1500
F-1505
F-1516
F-1541
F-1545
F-1553
F-1554
F-1560
F-1568
F-1570
F-1585 A
F-1586
F-1590
F-1600
F-1622
F-1660
F-1674
F-1678
F-1680 A
F-1686 A
 

1700 - 1899 sq ft

 
F-1704
F-1708
F-1710
F-1728
A
F-1735
F-1745
F-1750
A
F-1755
A
F-1780 A
F-1796
F-1798
F-1800
F-1805
F-1810
F-1813
F-1860
F-1880
A
 

1900 - 2110 sq ft

 
F-1945
F-1950

F-1960 A
F-1975
F-1990 A
F-2040
F-2047
F-2058
F-2080
A
F-2110
A
 

2120 - 2500 sq ft

 
F-2128
F-2160 A
C-2200 A
F-2230
F-2300 A
F-2378
F-2382
 
above 2500 sq ft  
F-2540 A
F-2544
F-2600
F-2670 A
F-2874
F-3110
 

Log Plans

  

under 1000 sq ft

 
L-320 A
L-648
L-780
L-800 A
L-950
 

1000 - 1200 sq ft

 
L-1000
L-1001
L-1008
L-1080
L-1104
L-1180
 

1200 - 1399 sq ft

 
L-1252
L-1280

L-1300
L-1318
L-1390
 

1400 - 1499 sq ft

 
L-1430 L-1450  

1500 - 1699 sq ft

 
 L-1680    

1700 - 1899 sq ft

 
L-1735    

1900 - 2110 sq ft

 
L-1950  L-2230  

2120 - 2500 sq ft

 
L-2160 L-2300  
above 2500 sq ft  
L-2540    
A =alternate included
= includes actual photos
(click on photo button on plan page)

 


(click the square footage of the house plan you want to view) Look at small, or tiny homes.

Custom Home Plans Inc  - http://www.natalieplans.com
706-782-5637
4747 Murray Cove Road, Tiger, Georgia 30576
Email Natalie Howard

Copyright © 1998-2017 Natalie Howard. All rights reserved.
Last Revised: July 13, 2017