Copyright © 1998-2015 Natalie Howard. All rights reserved.

|
How to Order |
Plan F-2110
First Floor: 1404 sq ft
Second Floor: 706 sq ft
Length: 60
Alternate adds square footage |
| Bedrooms |
4 |
|
Fireplace |
1 |
| Bathrooms |
2 |
|
Porch |
2 |
| Floors |
2 |
|
|
|
|
|
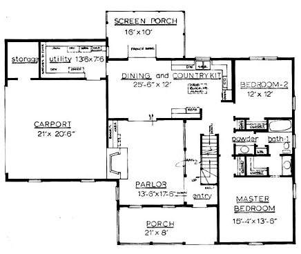
A wide country porch greets
visitors to this home. The open rail and optional step-down into parlor create a beautiful
effect. The long kitchen has many cabinets and is opened to the dining area. The screen
porch is
convenient to the country kitchen for dining. The utility room has extra spaces for
freezer, ironing board and sewing machine. The plan also includes an alternate for the
master bath with separate shower and a garden tub. A dormer can be added over the porch to
give bedroom-4 an alcove. |
|
View alternate F-2110 |
|