House plans by Natalie Howard

Country Plan C-2200 Alternate

The well-planned kitchen is large enough to include an island and a breakfast table which is located to view the fireplace in the Great Room. The utility room provides a place to sew or iron and has a laundry sink. A walk-in pantry is next to a rear powder room that is convenient for playing children or gardeners.

Country Contemporary Home Plan C-2200 Alternate

Copyright © 1998-2015 Natalie Howard. All rights reserved.

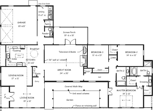
Country Contemporary Plan F-2200 Alternate First Floor

How to Order

Plan C-2200 A (Alternate)
First Floor: 2570 sq ft
Length:
86’
Depth: 58’
Bedrooms 3 Fireplace 1
Bathrooms 2.5 Patio 1
Floors 1    

Number of Sets

The long, one level Ranch Style with the center Great Room and enclosed Garden offers 3 large Bedrooms and a gracious master bathroom with two walk-in closets.

The oversized formal dining and living areas are located for entertainment on the opposite side of the garden from the bedrooms. A French door opens to an intimate, secluded covered patio.

The well planned kitchen is large enough to include an island and a breakfast table which is located to view the fireplace in the Great Room. The utility room provides a place to sew or iron and has a laundry sink. A walk-in pantry is next to a rear powder room that is convenient for playing children or gardeners.

Last, but not least, a large screen porch to enjoy outside eating on mild, lazy days is off the Great Room and convenient to the kitchen.
Alternate includes:
• enlarged master bathroom w/shower & separate tub 
• large walk-in closet
• longer dining room
• rear screen porch
• alternate basement plan 

View original C-2200

*All material lists apply only to the basic house plans. Material lists for
alternate plans included in the basic house plan sets are not available.
 

  

 

List of House Plans

  

under 1000 sq ft

 
F-648 A F-780 A  

1000 - 1200 sq ft

 
F-1001 A
F-1008
A
F-1010
A
F-1055
F-1080
F-1104

F-1180
 

1200 - 1399 sq ft

 
F-1213
F-1250
A
F-1252
A
F-1280
C-1285
F-1300 A
F-1318
A
F-1338
A
F-1390
A
 

1400 - 1499 sq ft

 
F-1400 A
F-1430
A
F-1440
A
F-1441
A
C-1450
F-1460
F-1464
F-1472
 

1500 - 1699 sq ft

 
F-1500
F-1505
F-1516
F-1541
F-1545
F-1553
F-1554
F-1560
F-1568
F-1570
F-1585 A
F-1586
F-1590
F-1600
F-1622
F-1660
F-1674
F-1678
F-1680 A
F-1686 A
 

1700 - 1899 sq ft

 
F-1704
F-1708
F-1710
F-1728
A
F-1735
F-1745
F-1750
A
F-1755
A
F-1780 A
F-1796
F-1798
F-1800
F-1805
F-1810
F-1813
F-1860
F-1880
A
 

1900 - 2110 sq ft

 
F-1945
F-1950

F-1960 A
F-1975
F-1990 A
F-2040
F-2047
F-2058
F-2080
A
F-2110
A
 

2120 - 2500 sq ft

 
F-2128
F-2160 A
C-2200 A
F-2230
F-2300 A
F-2378
F-2382
 
above 2500 sq ft  
F-2540 A
F-2544
F-2600
F-2670 A
F-2874
F-3110
 

Log Plans

  

under 1000 sq ft

 
L-320 A
L-648
L-780
L-800 A
L-950
 

1000 - 1200 sq ft

 
L-1000
L-1001
L-1008
L-1080
L-1104
L-1180
 

1200 - 1399 sq ft

 
L-1252
L-1280

L-1300
L-1318
L-1390
 

1400 - 1499 sq ft

 
L-1430 L-1450  

1500 - 1699 sq ft

 
 L-1680    

1700 - 1899 sq ft

 
L-1735    

1900 - 2110 sq ft

 
L-1950  L-2230  

2120 - 2500 sq ft

 
L-2160 L-2300  
above 2500 sq ft  
L-2540    
A =alternate included
= includes actual photos
(click on photo button on plan page)

 


(click the square footage of the house plan you want to view) Look at small, or tiny homes.

Custom Home Plans Inc  - http://www.natalieplans.com
706-782-5637
4747 Murray Cove Road, Tiger, Georgia 30576
Email Natalie Howard

Copyright © 1998-2017 Natalie Howard. All rights reserved.
Last Revised: July 13, 2017