House plans by Natalie Howard

Country Plan Alternate F-2300

Need a Master Bedroom Fireplace? This Plan has a fireplace for both the Living Room and the Master Bedroom.  The shed Country Front Porch makes your house more "Country." 

Country Home Plan F-2300

Copyright © 1998-2002 Natalie Howard. All rights reserved.

Country Home Plan Alternate F-2300 First Floor       

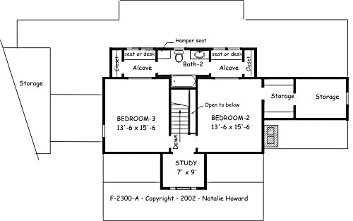
Country Home Plan Alternate F-2300 Second Floor

How to Order
Plan F-2300 A (Alternate)
First Floor: 1600 sq ft
Second Floor: 790 sq ft
Basement: 1400 sq ft
Length: 84’
Depth: 46’ 
Bedrooms 3 Fireplace 1
Bathrooms 2 Porch 2
Floors 2     

Number of Sets

The ‘Farmer Porch’ name is given to a long, wide porch on which farm families sat for hours while shucking corn and shelling peas. In this alternate plan the family room is connected to a mud room-utility area with access from both the back yard and the front of the house. A sink and built-in ironing board are provided with a commode in its separate stall.

On the opposite side of the house the master bath expands to create a garden tub and separate shower. A window seat becomes a clothes hamper. Extra closets n the master bedroom are additions to the walk-in closet in the bath.

At the top of the stairs a large dormer pops out with its special window to make a tiny study. The circle top window in the dormer lights up the stairway. The upstairs bath that has a hamper-seat opens to each bedroom alcove. A large storage room makes the upstairs complete.

The basement layout provides a future Bedroom-4 with its shower bath. The long, wide Playroom and a Hobby Room open to a lower porch beneath the upstairs screen porch. Extra storage areas are also planned.
Alternate includes:
• enlarged master bedroom with luxurious bathroom with shower & separate tub 
• open stairway with stairs to playroom 
• large walk-in closet over foyer
• wrap porch
• study dormer at head of stairs
• larger utility room
• double garage
• basement

View original F-2300
View log L-2300

Click here for a photo of the home View photo

click for larger view
 of floor plan
 
(will take time to load)

*All material lists apply only to the basic house plans. Material lists for
alternate plans included in the basic house plan sets are not available.

  

 

List of House Plans

  

under 1000 sq ft

 
F-648 A F-780 A  

1000 - 1200 sq ft

 
F-1001 A
F-1008
A
F-1010
A
F-1055
F-1080
F-1104

F-1180
 

1200 - 1399 sq ft

 
F-1213
F-1250
A
F-1252
A
F-1280
C-1285
F-1300 A
F-1318
A
F-1338
A
F-1390
A
 

1400 - 1499 sq ft

 
F-1400 A
F-1430
A
F-1440
A
F-1441
A
C-1450
F-1460
F-1464
F-1472
 

1500 - 1699 sq ft

 
F-1500
F-1505
F-1516
F-1541
F-1545
F-1553
F-1554
F-1560
F-1568
F-1570
F-1585 A
F-1586
F-1590
F-1600
F-1622
F-1660
F-1674
F-1678
F-1680 A
F-1686 A
 

1700 - 1899 sq ft

 
F-1704
F-1708
F-1710
F-1728
A
F-1735
F-1745
F-1750
A
F-1755
A
F-1780 A
F-1796
F-1798
F-1800
F-1805
F-1810
F-1813
F-1860
F-1880
A
 

1900 - 2110 sq ft

 
F-1945
F-1950

F-1960 A
F-1975
F-1990 A
F-2040
F-2047
F-2058
F-2080
A
F-2110
A
 

2120 - 2500 sq ft

 
F-2128
F-2160 A
C-2200 A
F-2230
F-2300 A
F-2378
F-2382
 
above 2500 sq ft  
F-2540 A
F-2544
F-2600
F-2670 A
F-2874
F-3110
 

Log Plans

  

under 1000 sq ft

 
L-320 A
L-648
L-780
L-800 A
L-950
 

1000 - 1200 sq ft

 
L-1000
L-1001
L-1008
L-1080
L-1104
L-1180
 

1200 - 1399 sq ft

 
L-1252
L-1280

L-1300
L-1318
L-1390
 

1400 - 1499 sq ft

 
L-1430 L-1450  

1500 - 1699 sq ft

 
 L-1680    

1700 - 1899 sq ft

 
L-1735    

1900 - 2110 sq ft

 
L-1950  L-2230  

2120 - 2500 sq ft

 
L-2160 L-2300  
above 2500 sq ft  
L-2540    
A =alternate included
= includes actual photos
(click on photo button on plan page)

 


(click the square footage of the house plan you want to view) Look at small, or tiny homes.

Custom Home Plans Inc  - http://www.natalieplans.com
706-782-5637
4747 Murray Cove Road, Tiger, Georgia 30576
Email Natalie Howard

Copyright © 1998-2017 Natalie Howard. All rights reserved.
Last Revised: July 13, 2017