|

Copyright © 1998-2015 Natalie
Howard. All rights reserved.
|
How to Order |
Plan F-2670
First Floor: 1676 sq ft
Second Floor: 994 sq ft
Playroom: 412 sq ft
Length: 90' |
| Bedrooms |
3/4 |
|
Fireplace |
2 |
| Bathrooms |
4.5 |
|
Porch |
1 |
| Floors |
2 |
|
|
|
|
|
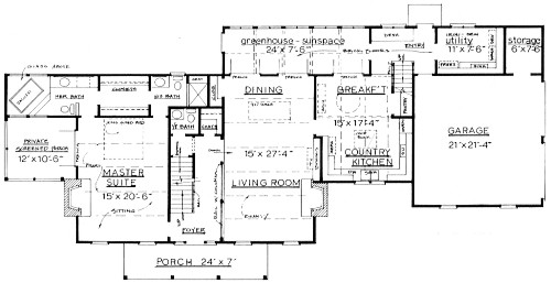
| Twin chimneys add charm to this country home. The main stairway is opened to the foyer which steps down into the living room. The long view across the rail with its columns reveals the open fireplace that features television and bookshelves. The dining area, which has two walls for furniture and its own closet, opens onto the Greenhouse or Sunspace with two wide French doors. The breakfast area opposite the convenient shaped kitchen also accesses the Sunspace. Built-in ovens next to the pantry under the backstairs and the desk at the rear entry are special features. Besides the washer, dryer and sink, the utility room provides space for a freezer and sewing or ironing space. Besides the two oversized bedrooms, the upstairs includes a Sitting Room or Office with a balcony over greenhouse. Each bedroom has an alcove with a walk-in closet and a vanity. The backstairs from the kitchen below accesses the Sitting Room and the Playroom over the garage. |
View
alternate F-2670 |
|
click for larger
view
of floor plan
(will take time to load)
|
|