House plans by Natalie Howard

Country Plan F-1300

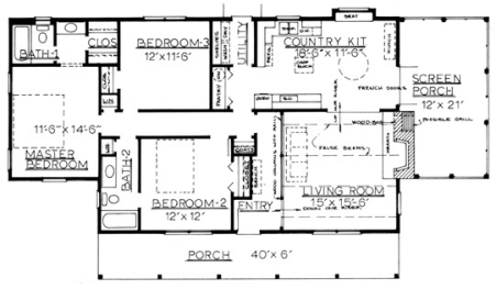
Many agree, this is our most versatile and popular plan. It incorporates wonderful open living in the kitchen and living rooms. The traffic flow allows the children to enter through the utility room to access their bedrooms - convenient when you are entertaining. The country kitchen is well-planned with a pantry and its separate surface unit and built-in ovens. Several alternates, one with a double garage accompany this plan, F-1300.

Country Home Plan F-1300

Copyright © 1998-2015 Natalie Howard. All rights reserved.

Country Plan F-1300 First Floor

Alternate Bathroom

Alternate Basement Stairs

How to Order

Plan F-1300
First Floor: 1444 sq ft
Length: 64'
Alternate adds square footage
Bedrooms 3 Fireplace 1
Bathrooms 2 Porch 2
Floors 1    

Number of Sets

Our most popular plan incorporates open living in the kitchen and living rooms. Yet children can enter utility room to access their bedrooms. The country kitchen is well planned with a pantry and its separate surface unit and built-in ovens. Several alternates, one with double garage accompany this plan, F-1300.
Alternates included:
• master bath w/separate shower & garden tub 
• stairway w/basement floor plan 
• double garage w/rear screen porch 
• separate dining room

Click here for a photo of the home View photo

View alternate F-1300

*material list only sold with plan of same number

  

 

List of House Plans

  

under 1000 sq ft

 
F-648 A F-780 A  

1000 - 1200 sq ft

 
F-1001 A
F-1008
A
F-1010
A
F-1055
F-1080
F-1104

F-1180
 

1200 - 1399 sq ft

 
F-1213
F-1250
A
F-1252
A
F-1280
C-1285
F-1300 A
F-1318
A
F-1338
A
F-1390
A
 

1400 - 1499 sq ft

 
F-1400 A
F-1430
A
F-1440
A
F-1441
A
C-1450
F-1460
F-1464
F-1472
 

1500 - 1699 sq ft

 
F-1500
F-1505
F-1516
F-1541
F-1545
F-1553
F-1554
F-1560
F-1568
F-1570
F-1585 A
F-1586
F-1590
F-1600
F-1622
F-1660
F-1674
F-1678
F-1680 A
F-1686 A
 

1700 - 1899 sq ft

 
F-1704
F-1708
F-1710
F-1728
A
F-1735
F-1745
F-1750
A
F-1755
A
F-1780 A
F-1796
F-1798
F-1800
F-1805
F-1810
F-1813
F-1860
F-1880
A
 

1900 - 2110 sq ft

 
F-1945
F-1950

F-1960 A
F-1975
F-1990 A
F-2040
F-2047
F-2058
F-2080
A
F-2110
A
 

2120 - 2500 sq ft

 
F-2128
F-2160 A
C-2200 A
F-2230
F-2300 A
F-2378
F-2382
 
above 2500 sq ft  
F-2540 A
F-2544
F-2600
F-2670 A
F-2874
F-3110
 

Log Plans

  

under 1000 sq ft

 
L-320 A
L-648
L-780
L-800 A
L-950
 

1000 - 1200 sq ft

 
L-1000
L-1001
L-1008
L-1080
L-1104
L-1180
 

1200 - 1399 sq ft

 
L-1252
L-1280

L-1300
L-1318
L-1390
 

1400 - 1499 sq ft

 
L-1430 L-1450  

1500 - 1699 sq ft

 
 L-1680    

1700 - 1899 sq ft

 
L-1735    

1900 - 2110 sq ft

 
L-1950  L-2230  

2120 - 2500 sq ft

 
L-2160 L-2300  
above 2500 sq ft  
L-2540    
A =alternate included
= includes actual photos
(click on photo button on plan page)

 


(click the square footage of the house plan you want to view) Look at small, or tiny homes.

Custom Home Plans Inc  - http://www.natalieplans.com
706-782-5637
4747 Murray Cove Road, Tiger, Georgia 30576
Email Natalie Howard

Copyright © 1998-2017 Natalie Howard. All rights reserved.
Last Revised: July 13, 2017