Copyright © 1998-2015 Natalie Howard. All rights reserved.

|
How to Order |
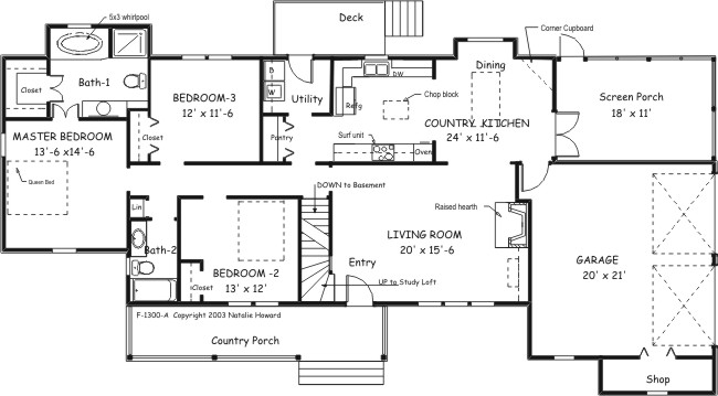
Alternate Plan F-1300
First Floor: 1630 sq ft
Loft: 360 sq ft
Length: 80'
Alternate adds square footage |
| Bedrooms |
3 |
|
Fireplace |
1 |
| Bathrooms |
2 |
|
Porch |
2 |
| Floors |
1 |
|
|
|
|
|
| This alternate floor
plan provides a master bath with a separate shower & garden tub. A
stairway leads to a full basement. Stairway near front door leads to
a study loft that has its own 1/2 bath and dormer alcove. The dining
room is separated slightly and opens to a side screen porch, located
behind a double garage. The double garage has small shop area with
its own window. |
|
View original
F-1300 |
|