House plans by Natalie Howard

The right house plan for that difficult building site,
Country Plan F-1686

A quaint Covered Bridge to your new home. This unique house is designed to bridge a creek or a ravine with its single garage and side walkway.

Country Plan F-1686

Copyright © 1998-2015 Natalie Howard. All rights reserved.

 

How to Order

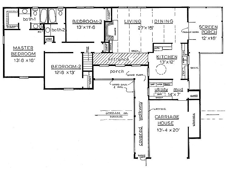
Plan F-1686
First Floor: 1686 sq ft
Length: 64'  
Bedrooms 3 Fireplace 1
Bathrooms 2 Porch 2
Floors 1    

Number of Sets

This unique house is designed to bridge a creek with its single garage and side walkway. The main entrance opens into the long living and dining room and is planned to keep down traffic. The kitchen is large and has its own eating area. The utility which has a sink and sewing or ironing space is connected to the deck and three-sided screen porch. The master bedroom has a huge walk-in closet and an alternate layout for a separate shower and garden tub. The daylight basement plan includes a bedroom with shower bath; a playroom; a shop with side entry and unfinished area.
Alternates included:
• double Garage
• stairs to small study loft
• separate tub and shower
• deep, covered front porch
• no basement
View alternate F-1686
Country Plan F-1686 First Floor
*material list only sold with plan of same number

  

 

List of House Plans

  

under 1000 sq ft

 
F-648 A F-780 A  

1000 - 1200 sq ft

 
F-1001 A
F-1008
A
F-1010
A
F-1055
F-1080
F-1104

F-1180
 

1200 - 1399 sq ft

 
F-1213
F-1250
A
F-1252
A
F-1280
C-1285
F-1300 A
F-1318
A
F-1338
A
F-1390
A
 

1400 - 1499 sq ft

 
F-1400 A
F-1430
A
F-1440
A
F-1441
A
C-1450
F-1460
F-1464
F-1472
 

1500 - 1699 sq ft

 
F-1500
F-1505
F-1516
F-1541
F-1545
F-1553
F-1554
F-1560
F-1568
F-1570
F-1585 A
F-1586
F-1590
F-1600
F-1622
F-1660
F-1674
F-1678
F-1680 A
F-1686 A
 

1700 - 1899 sq ft

 
F-1704
F-1708
F-1710
F-1728
A
F-1735
F-1745
F-1750
A
F-1755
A
F-1780 A
F-1796
F-1798
F-1800
F-1805
F-1810
F-1813
F-1860
F-1880
A
 

1900 - 2110 sq ft

 
F-1945
F-1950

F-1960 A
F-1975
F-1990 A
F-2040
F-2047
F-2058
F-2080
A
F-2110
A
 

2120 - 2500 sq ft

 
F-2128
F-2160 A
C-2200 A
F-2230
F-2300 A
F-2378
F-2382
 
above 2500 sq ft  
F-2540 A
F-2544
F-2600
F-2670 A
F-2874
F-3110
 

Log Plans

  

under 1000 sq ft

 
L-320 A
L-648
L-780
L-800 A
L-950
 

1000 - 1200 sq ft

 
L-1000
L-1001
L-1008
L-1080
L-1104
L-1180
 

1200 - 1399 sq ft

 
L-1252
L-1280

L-1300
L-1318
L-1390
 

1400 - 1499 sq ft

 
L-1430 L-1450  

1500 - 1699 sq ft

 
 L-1680    

1700 - 1899 sq ft

 
L-1735    

1900 - 2110 sq ft

 
L-1950  L-2230  

2120 - 2500 sq ft

 
L-2160 L-2300  
above 2500 sq ft  
L-2540    
A =alternate included
= includes actual photos
(click on photo button on plan page)

 


(click the square footage of the house plan you want to view) Look at small, or tiny homes.

Custom Home Plans Inc  - http://www.natalieplans.com
706-782-5637
4747 Murray Cove Road, Tiger, Georgia 30576
Email Natalie Howard

Copyright © 1998-2017 Natalie Howard. All rights reserved.
Last Revised: July 13, 2017