Copyright © 1998-2015 Natalie Howard. All rights reserved.
 |
How to Order |
Plan F-1686
Alternate
First Floor: 1686 sq ft
Length: 96' |
| Bedrooms |
3 |
|
Fireplace |
1 |
| Bathrooms |
2 |
|
Porch |
2 |
| Floors |
1 |
|
|
|
|
|
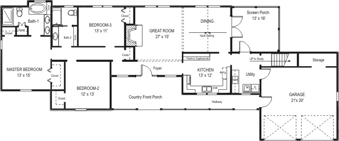
| The
covered bridge version of F-1686 becomes a long Country Ranch house
plan with its double garage and deep country porch. The Master Bath has
double lavatories and a garden tub with separate shower. Note the extra
closets. The compartmented hall bath has a long vanity with full wall
shelves for towels. The special Great Room opens to the vaulted ceiling,
featured in the Dining Room and Kitchen. Views of the Fireplace from the
Dining Room are quite impressive. The large screen porch, with its two
accesses, extends the living area when weather is mild. Stairs lead up
from the Utility hall to a study above the double garage. No basement is
included in this layout. |
Alternates included:
An alternate layout places a double garage and utility room to the side
of the kitchen that access the rear screen porch. Stairs lead to small
study loft above the garage. Alternate master bathroom plan provides
double lavatory sinks, shower and garden tub. Note also, the deep,
covered front porch that offers ample furniture space protected from the
weather. |
| View
original F-1686 |
|