House plans by Natalie Howard

Country Plan F-1750

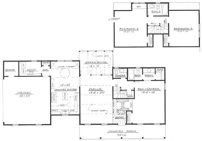
The center fireplace in this plan, gives the opportunity for a cozy Master Bedroom Fireplace with ample room for sitting. Note the brick hearth extends out beyond the Living Room or Parlor Fireplace to form the floor at the entry.

Country Plan F-1750

Copyright © 1998-2015 Natalie Howard. All rights reserved.

How to Order

Plan F-1750
First Floor: 1186 sq ft
Second Floor: 584 sq ft
Length: 68' 
Bedrooms 3/4 Fireplace 2
Bathrooms 3.5 Porch 2
Floors 2    

Number of Sets

The center fireplace in this plan, F-1750, gives the opportunity for a cozy master bedroom fireplace with ample room for sitting. Note the brick hearth extends to form the floor at the entry. The plan offers two master bathroom layouts, one with a separate shower and Jacuzzi tub. The parlor is long enough to accommodate a dining table. Of course, the greenhouse can become a conventional screen porch or sun room. The country kitchen is long enough for a sitting area in the end if the dining is in the parlor. A mud room closes off the utility room. The small pantry can become an exterior rear door if required. Upstairs the bedrooms are separated by the stairway. There is not a basement layout for this plan.

View alternate F-1750

Country Home Plan F-1750

*material list only sold with plan of same number

  

 

List of House Plans

  

under 1000 sq ft

 
F-648 A F-780 A  

1000 - 1200 sq ft

 
F-1001 A
F-1008
A
F-1010
A
F-1055
F-1080
F-1104

F-1180
 

1200 - 1399 sq ft

 
F-1213
F-1250
A
F-1252
A
F-1280
C-1285
F-1300 A
F-1318
A
F-1338
A
F-1390
A
 

1400 - 1499 sq ft

 
F-1400 A
F-1430
A
F-1440
A
F-1441
A
C-1450
F-1460
F-1464
F-1472
 

1500 - 1699 sq ft

 
F-1500
F-1505
F-1516
F-1541
F-1545
F-1553
F-1554
F-1560
F-1568
F-1570
F-1585 A
F-1586
F-1590
F-1600
F-1622
F-1660
F-1674
F-1678
F-1680 A
F-1686 A
 

1700 - 1899 sq ft

 
F-1704
F-1708
F-1710
F-1728
A
F-1735
F-1745
F-1750
A
F-1755
A
F-1780 A
F-1796
F-1798
F-1800
F-1805
F-1810
F-1813
F-1860
F-1880
A
 

1900 - 2110 sq ft

 
F-1945
F-1950

F-1960 A
F-1975
F-1990 A
F-2040
F-2047
F-2058
F-2080
A
F-2110
A
 

2120 - 2500 sq ft

 
F-2128
F-2160 A
C-2200 A
F-2230
F-2300 A
F-2378
F-2382
 
above 2500 sq ft  
F-2540 A
F-2544
F-2600
F-2670 A
F-2874
F-3110
 

Log Plans

  

under 1000 sq ft

 
L-320 A
L-648
L-780
L-800 A
L-950
 

1000 - 1200 sq ft

 
L-1000
L-1001
L-1008
L-1080
L-1104
L-1180
 

1200 - 1399 sq ft

 
L-1252
L-1280

L-1300
L-1318
L-1390
 

1400 - 1499 sq ft

 
L-1430 L-1450  

1500 - 1699 sq ft

 
 L-1680    

1700 - 1899 sq ft

 
L-1735    

1900 - 2110 sq ft

 
L-1950  L-2230  

2120 - 2500 sq ft

 
L-2160 L-2300  
above 2500 sq ft  
L-2540    
A =alternate included
= includes actual photos
(click on photo button on plan page)

 


(click the square footage of the house plan you want to view) Look at small, or tiny homes.

Custom Home Plans Inc  - http://www.natalieplans.com
706-782-5637
4747 Murray Cove Road, Tiger, Georgia 30576
Email Natalie Howard

Copyright © 1998-2017 Natalie Howard. All rights reserved.
Last Revised: July 13, 2017