Copyright © 1998-2015 Natalie Howard. All rights reserved.


|
How to Order |
Plan F-1750
(Alternate)
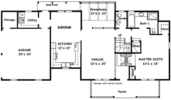
First Floor: 1280 sq ft
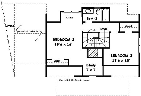
Second Floor: 742 sq ft
Length: 68' |
| Bedrooms |
3/4 |
|
Fireplace |
2 |
| Bathrooms |
3.5 |
|
Porch |
2 |
| Floors |
2 |
|
|
|
|
|
| The center fireplace in this plan, F-1750, gives the opportunity for a cozy master bedroom fireplace with ample room for sitting. Note the brick hearth extends to form the floor at the entry. The plan offers two master bathroom layouts, one with a separate shower and Jacuzzi tub. The parlor is long enough to accommodate a dining table. Of course, the greenhouse can become a conventional screen porch or sun room. The country kitchen is long enough for a sitting area in the end if the dining is in the parlor. A mud room closes off the utility room. The small pantry can become an exterior rear door if required. Upstairs the bedrooms are separated by the stairway. There is not a basement layout for this plan. |
|
View original
F-1750 |
|